THE ALUMINUM SLIDING SYSTEM:

Schüco ASE 70 PD.ME

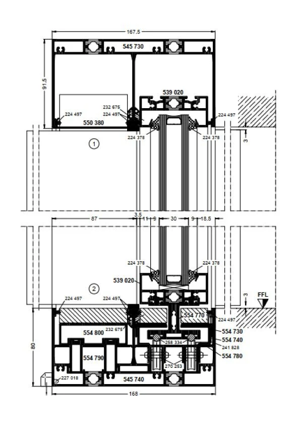
The Panorama Design sliding system ASE 70 PD.ME is a high-quality system with a high degree of flexibility. This allows customer requirements in terms of design and function to be optimally met. Its outstanding performance, large sliding panels, and, last but not least, its sleek appearance make it an ideal choice.

Features and Benefits

● System for sliding units with thermal insulation for the highest level of transparency and maximum light penetration
● New, fully integrated locking devices
● Design freedom thanks to the free selection of handles
● Vent weight up to 600 kg
● Face widths from 31 mm in the interlocking section
● Glass thicknesses of 24 mm – 40 mm possible
● Large vent heights up to 3500 mm
● Innovative guide rail system
● Vent can be closed and brought to a stop securely thanks to handle or integrated pull grip
● Wide range of designs based on double and triple track outer frames
● Stainless steel track and stainless steel rollers make the vents easy to move

SCHÜCO PERFECT

Schüco launches the Perfect product: a modular system that is placed in front of the window or sliding element and merges with it to form an optical unit. Different add-ons can be selected in the upper curtain box, the side guide rails and the lower bottom end.

Depending on the requirements or customer wishes, Schüco Perfect can be designed with sun and/or insect protection, a window sill, fall protection or even a threshold. Different combinations are possible and can be revised at any time – even afterwards.

BROCHURES

Download

Click on the image to go to the brochure.